
公厕粪便焚烧炉技术方案
一、项目背景
1、传统处理方式的局限性
化粪池:依赖自然降解(周期3-6个月),易因沼气聚集引发安全事故(如甲烷浓度超5%遇明火爆炸),需定期清掏(单池清掏成本约800-1500元/次),且占地约20-50㎡/百人次。、
移动排污车:运输成本高(单次500-2000元),高频次作业易导致管道泄漏(据统计运输泄漏率约3.2%),偏远地区受路况限制覆盖率不足40%。
政策压力:中国“无废城市”建设要求2025年重点区域污水资源化利用率超60%,欧盟《废弃物框架指令》禁止可焚烧废物直接填埋,传统模式合规成本剧增。
2、技术可行性验证
高温焚烧:医疗废物焚烧标准(GB 18485-2014)要求≥700℃持续0.5小时,可灭活99.99%病原体(如大肠杆菌、冠状病毒),技术成熟度达TRL7(工程化验证阶段)。
真空抽吸:化工行业已应用负压≥10kPa的防堵系统(如粉体物料输送),适配性经ATEX防爆认证,故障率<0.1次/千小时。
二、项目目的
1、设备定位:研发模块化集成设备,融合真空抽吸(负压≥8kPa)、高温焚烧(700℃)及PLC智能控制,实现污物“产生-粉碎-焚烧”全流程即时处理。
2、替代价值:
(1) 减少运输依赖:对比传统排污车,年节约运输成本超80%(按日处理200L计算,年省约7.3万元)。
(2)降低二次污染:焚烧后灰烬体积减少90%,粪便燃烧后产生的二氧化碳与水蒸气通过烟管自然排放。固体残留物为无机盐和其他矿物质。
三、原理示意图
1. 污物处理链:
厕所模块(粉碎)→真空储存罐(密封)→管道抽吸(流量传感器控制)→焚烧室(升温-恒温沸腾-升温燃烧-冷却)→灰烬仓(负压收集)。
2. 辅助系统:
(1)真空系统:自吸泵+流量传感器(异常报警阈值±10%额定值)。
(2) 焚烧系统:电加热元件+温度传感器(700℃恒温控制)。
(3) 排放系统:烟气管道自然排放。
四、模块化真空抽吸焚化系统
模块化真空抽吸焚化系统构建了排泄物处理全链条闭环,以“污物储存罐一真空管道-焚烧室一灰烬仓一排烟管” 的一体化流程为核心,深度集成自动化控制与智能监测技术,实现从收集、输送、高温焚化到灰烬处理的全流程高效运转,极大减少人工干预,保障处理过程的安全性与稳定性。
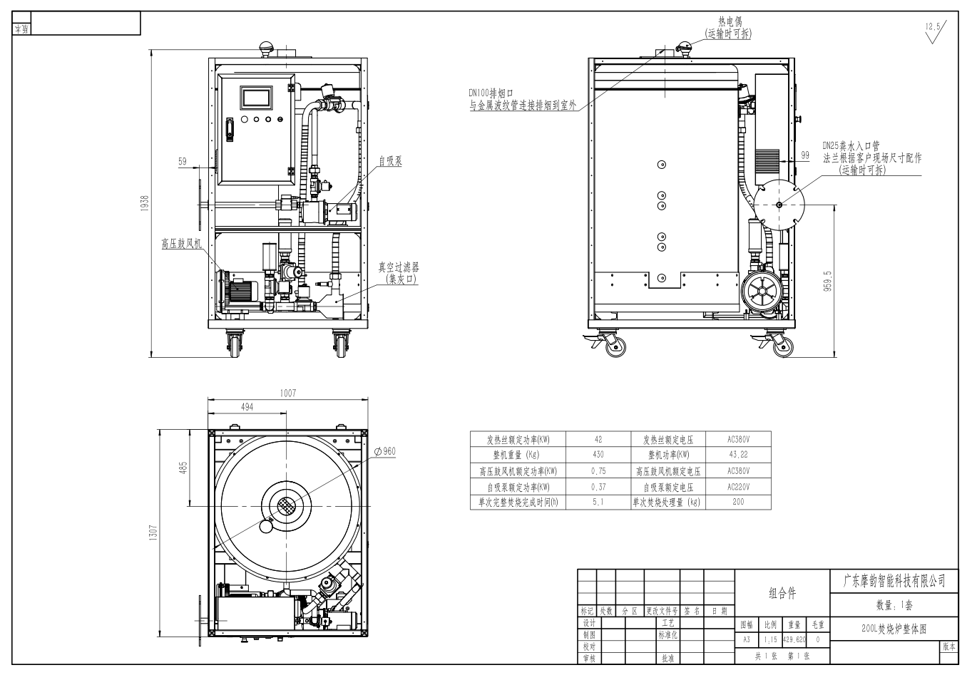
焚烧炉图
(1)自动化切碎收集:厕所模块内置粉碎装置,将排泄物实时切碎并通过真空管道输送至专用储存罐,确保输送过程无堵塞、无异味泄漏。
(2)储存罐功能:真空储存罐采用密封设计,具备压力平衡系统,可临时储存切碎后的污物,为后续处理提供缓冲空间。
(1)智能启动机制:焚化炉按预设程序每日定时激活抽吸系统,焚化室相应的电磁阀自动开启,自吸泵以恒定功率启动,形成负压输送通道。
(2)精准流量控制:管道内置电磁流量传感器,实时监测输送量,当累计流量达 200L 时,系统自动切断泵电源,同步关闭焚化室进口阀门,误差控制在 ±5L 范围内。
(1)三段式温控流程:
①升温阶段:以 42KW/H 额定功率持续加热,4 小时内将焚化室温度从常温升至700℃,确保有机物充分热解;
②焚烧阶段:恒温700℃维持 0.6 小时,配合炉内散流助燃装置,实现污物完全燃烧,减容率≥95%;
③冷却阶段:启动强制通风系统,0.5 小时内将炉温降至 80℃以下,便于后续清灰操作。
(2)能源配置:采用高效电阻加热元件,热转换效率达 92% 以上,满足连续运行的能耗需求。
焚化过程中,变频风机驱动进气 - 排气循环:新鲜空气从炉体底部送入,助燃同时形成正压环境;燃烧烟气经顶部管道自然排出,确保排放管道畅通。
(1)自动化清灰流程:炉底抽灰管连接真空抽吸系统,启动后通过负压将灰烬输送至高效真空过滤器,过滤效率达 99%(≥1μm 颗粒)。
(2)维护周期提示:系统通过 PLC 实时监测过滤器压差,当压力异常(超过设定值 -10kPa)时,操作面板亮红灯报警,需立即人工清理过滤器内灰烬,保障抽灰效率。
(1)气周期对比:常规化粪池需 1-3 个月厌氧发酵才产生沼气,而本系统按日均处理量计算,储存罐内污物最长停留时间≤72 小时(按三天启动一次流程),远低于产气临界周期。
(2)预防措施:焚烧炉在加热的过程中,管路电磁阀自动切断了与储存罐的连接,确保安全性。
当压力传感器报警时,需按以下步骤操作:
(1)切断焚化炉主电源,等待系统冷却至室温;
(2)拆卸真空过滤器外壳,清除内部积灰(建议使用防爆吸尘器);
(3)检查滤芯完整性,必要时更换新滤芯;
(4)重启系统前进行气密性测试,确认无泄漏后恢复运行。
该处理系统通过 “粉碎 - 真空输送 - 精准焚化 - 高效除尘” 的全流程自动化设计,实现日均处理量 200kg 的连续作业能力,兼具以下特点:
(1)时效性:从抽吸到清灰全流程≤5.1 小时,满足高频使用场景;
(2)环保性:焚烧后气体为二氧化碳和水蒸气,满足排放标准要求,灰渣无害化率达 100%;
(3)智能化:PLC 集成控制系统支持远程监控,故障预警响应时间≤10 秒。
七、排烟量理论计算与影响因素
1、排烟量估算依据
(1)物质组成分析: 粪便含水率约 70%-80%,干物质中有机物占比约 60%-70%(主要为蛋白质、纤维素等),无机物占比约 30%-40%。焚烧时主要反应为:
①有机物燃烧生成 CO₂、H₂O、N₂等;
②水分蒸发为水蒸气;
③少量含硫、含氮物质生成 SO₂、NOx 等酸性气体。
2、理论排烟量计算
以处理 200kg 粪便(含水率 90%)为例:
(1)水分蒸发量:200kg×90%=180kg,转化为水蒸气约 300m³(100℃饱和水蒸气); (2)干物质燃烧需理论空气量:约 3.2-3.5m³/kg 干物质,200kg×10%=20kg 干物质,理论空气量 64-70m³;
(3)考虑 1.3 倍过剩空气系数,实际供气量:83-91m³;
(4)加热、燃烧排烟气成分:水蒸气 300m³ + 燃烧产物(CO₂、N₂等)约 180-190m³,总排烟量约 480-490m³(标准状态下)。
客服QQ:103459224
郭先生:18719213749 (微信同号)
谢先生:13660028224 (微信同号)
邮箱:johnny@my-toiletech.com
地址 广东省佛山市顺德区陈村镇仙涌村产兴一路3号中集智能制造中心3栋7楼